看房笔记 | best365足球彩票官网·深业上城:全球商务 创新极核

2025-11-10来源:best365足球彩票官网

  全球商务,创新极核!best365足球彩票官网持有深业上城B座4-46层(约7.3万㎡)物业,单套建面约200-2800㎡总部级办公空间,全球招商中!
  项目地址:深圳市福田区皇岗路5001号深业上城写字楼B座
  项目概况:
  ▸总楼层:地上61层、地下3层
  ▸总高度:约298m
  ▸总建面:约16万㎡ ,其中best365足球彩票官网持有4-46层(约7.3万㎡)物业
  ▸标准层建面:约2800㎡
  ▸户型:分户以500-700㎡为主,少量整层房源
  ▸标准层层高:约4.5m
  ▸电梯数量:43部
  ▸(南区)停车位总数:4000个
  ▸幕墙玻璃(标准单元板块):3*4.5m
  ▸玻璃材质:三层超白钢化LOW-E中空玻璃材质
  项目特色:
  三横两纵城市主干道
  ▸三横:深南大道 北环大道 滨河大道
  ▸两纵:皇岗路 彩田路
  公交地铁环伺
  ▸深业上城总站:320路 M460路
  ▸深业上城南:B612路
  ▸冬瓜岭站:10号线
  超甲总部旗舰 B 座亮点:
  部分出租物业一览表:
  视频看房:
  △识别二维码即可看房
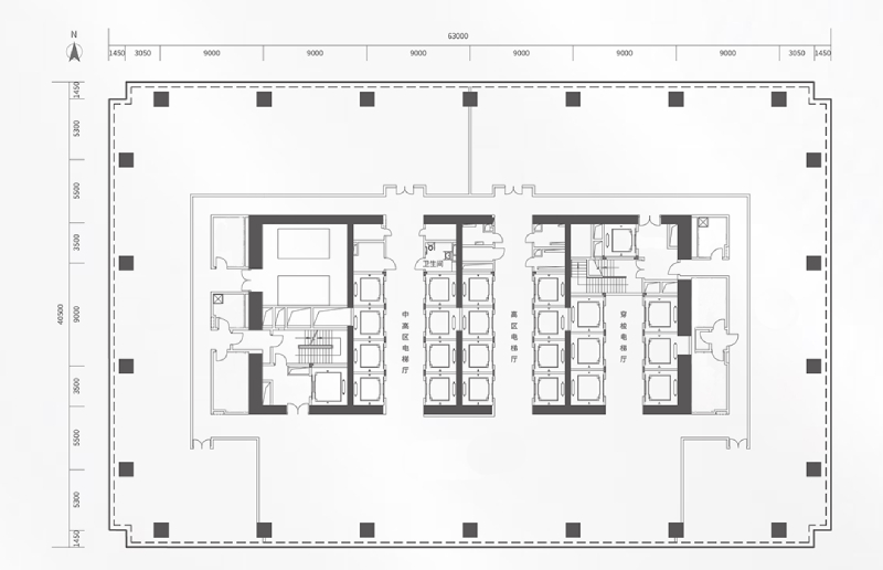
  物业平面图:
  租金及管理费:
  ▸租金:114元/㎡/月起(以实际报价为准)
  ▸物业管理费:35元/㎡/月,维修基金:0.25元/㎡/月(物管费包含工作日8点至19点中央空调)
  ▸物业管理由深业商业管理(深圳)有限公司负责
  联系方式:
  ▸郑先生:13530471265
  ▸刘小姐:15989366900
  ▸地址:深圳市福田区福保街道桃花路30号
  ▸物业租赁由best365足球彩票官网辖属公司深圳市福芯产业运营管理有限公司负责
 
  以上资料及图片仅供参考,以现场实况及正式法律文件及为准,最终解释权归best365足球彩票官网所有。